You're viewing: AIA Nevada - State Organization

Visit a Local Chapter:

The Garrison

Interior Architecture - Built

Merit

Building Sq. Ft.

1609

Date of Completion

01/10/2020

Firm Name

Stantec

Project Gallery

Project Narrative

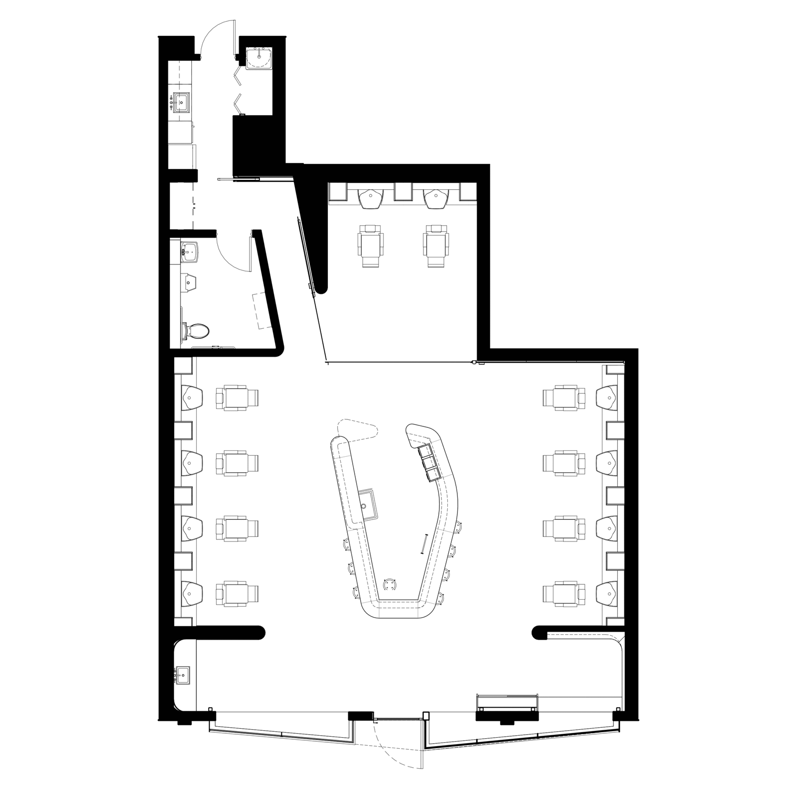
The Garrison stands as a testament to timeless elegance, seamlessly blending the charm of early 20th century design with contemporary flair. Rooted in tradition, this distinguished barbershop pays homage to veterans, encouraging patrons to share their stories through a collection of pins and patches while extending discounts as a token of gratitude for their service. Nestled in the Historic Huntridge Shopping Center, The Garrison upholds the rich barbering legacy of the area. It proudly follows in the footsteps of a neighboring barber shop adjacent to the iconic Huntridge Theater and the revered Hi-Roller’s Barber Shop, which sadly closed its doors in 2020. Despite facing the challenges of a pandemic-ridden October in 2020, The Garrison persevered through its challenging opening phase. Setting the stage for a unique customer experience, The Garrison's entrance defies convention with a custom steel storefront, projecting beyond the building's exterior while providing seating and product display on the interior side. Inside, a central island 'bar' serves as a welcoming space for patrons awaiting their appointments, accompanied by an optional shoe-shine service. The interior design exudes a simple yet sophisticated aesthetic, employing a material palette of concrete, steel, glass, tile, and wood. This carefully curated selection pays homage to the early 20th century while maintaining a sleek and modern atmosphere. Custom millwork at each barber station caters to ergonomic needs, with cabinets clad in hot-rolled steel to maintain a consistent materiality inside and out. Noteworthy is the bespoke green Japanese 1x6 finger tile, specially crafted for The Garrison, complementing the Osaka-made Takara Belmont chairs. This unique tile extends from the storefront to the restroom, creating a cohesive visual narrative. Skylights above flood the space with natural light, fostering a well-lit ambiance that benefits both barbers and patrons. Elliott Chester, the proud owner and operator, expresses his joy in creating a workplace that feels nothing short of incredible. The design philosophy at The Garrison exemplifies the profound impact that thoughtful design can have on the well-being of its inhabitants. The Garrison is more than just a barbershop; it's a living testament to the harmonious blend of tradition and modernity, where every detail contributes to an unforgettable experience.

Project Address