You're viewing: AIA Nevada - State Organization

Visit a Local Chapter:

Southend on Water

Commercial Architecture - Built

Merit

Building Sq. Ft.

14600

Date of Completion

01/02/2023

Firm Name

TSK Architects

Project Narrative

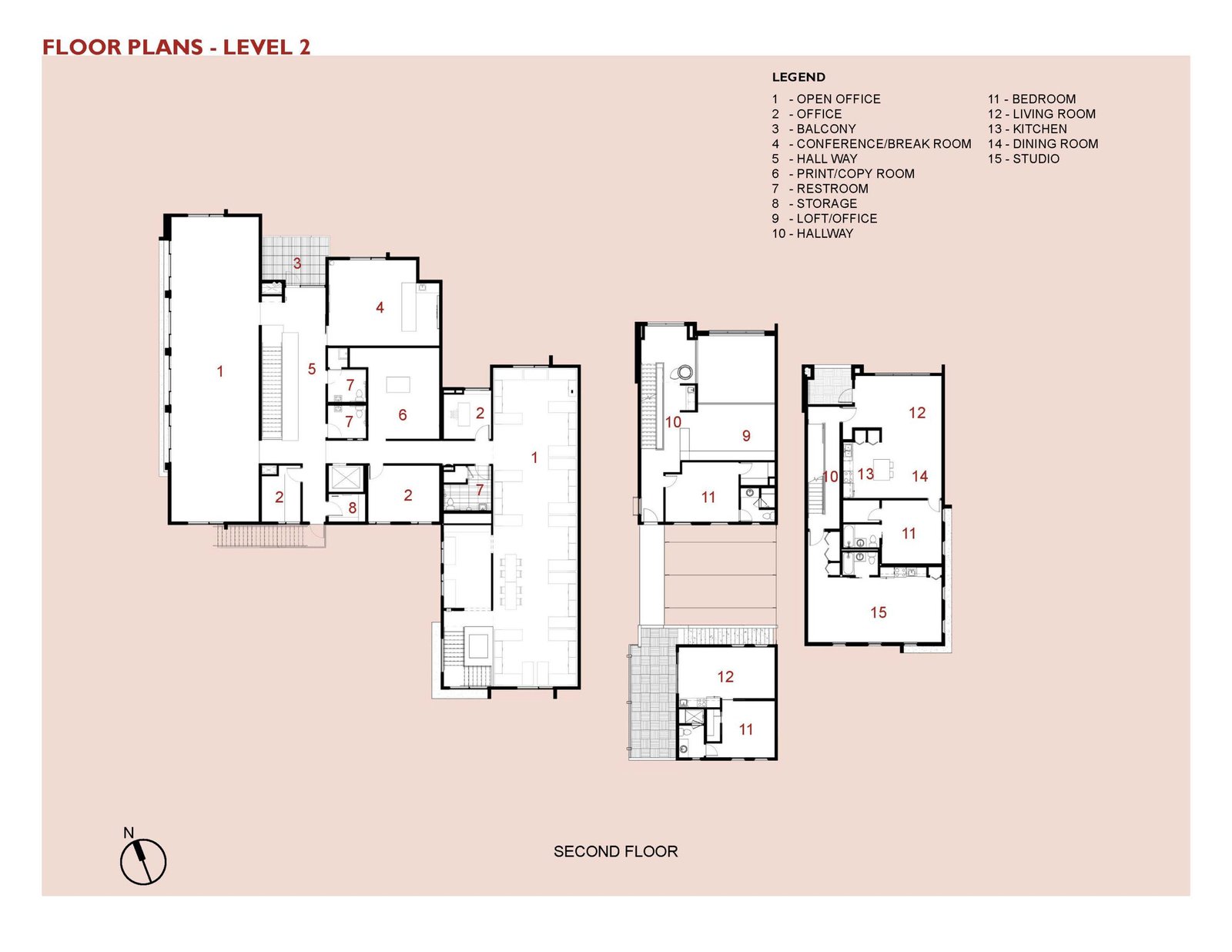
Southend on Water is a multi-phased, mixed-use urban infill redevelopment in downtown Henderson, Nevada. It is part of the historic core of the city in the Water Street District. The genesis for this development was born out of a visioning charrette held by the City of Henderson to focus on redevelopment and revitalization of their downtown area. The architecture firm who helped facilitate the process determined that they would be an ideal candidate business for relocating downtown. This helped to kick start the initial phase of Southend on Water, which has an architecture office and a coffee shop in a 2-story mixed-use building. Utilizing the existing redevelopment grants available, the developer was able to build a project that provided office space and retail creating a spark that has resulted in a wave of redevelopment downtown. Over the course of the next 5-years, constructed in four phases, the Southend development has now grown to include multi-family apartments, single-family housing, an Italian restaurant, additional professional office space, and a bocce ball court. The project phasing occurred over 5-years due to the developer’s incremental financing based on multiple city grants and land acquisitions. The commercial building is 11,000sf and 2-stories. It addresses the street with massing that provides a direct connection for the coffee shop and allows pedestrians to see activity within the building. The architecture is modern and human scaled to fit within the neighborhood. The materials are straight forward, utilizing finishes common to the region. The building massing is stepped to appear as two separate structures to reduce scale from the street and provide a forecourt in front of the offices that allow viewing of the two-story mural on the south façade. It also allows the flexibility to provide for future reorganization of the office and retail mix based on market demands. The 3,600sf three-story residential structures share an identical profile from the street and were influenced by Dutch housing typologies. One structure is a single family home with an ADU over the garage, which is separated by a courtyard and connected by a second floor bridge. It is elevated from the sidewalk and provides a usable set of stairs for seating during public events. The second residential structure is a mixed-use building with the Italian restaurant on the ground floor and an adjacent courtyard for exterior dining. The courtyard is enclosed by a set of offset walls that feature local artist’s murals facing the bocce ball court. Above the restaurant are three apartments with balconies facing Water Street. All of the structures share a common palette of materials and colors that integrate the overall design. Over the last 5 years Southend on Water has become an important catalyst for the city and for developers to invest into the downtown core.

Sustainable Design & Material Choices

The buildings are designed to be energy efficient with mostly passive strategies. The fenestration is properly shaded by placement and overhangs. In the offices, electrochromic glass is used with sensors on each façade allowing adjustment of light transmission tailored to the time of year or specific weather conditions. The buildings utilize a staged cooling strategy that incorporates operable windows throughout allowing for weather permitted passing ventilation. Ceiling fans provide additional fresh air displacement and contain temperature sensors, automatically activating when the space reaches a set temperature. The HVAC systems are programmed to respond when the former two stages can no longer maintain occupant comfort. The office spaces use motion detectors to automatically turn the lights off when not in use reducing energy consumption. The landscaping is all comprised of drought tolerant plants and utilizes drip irrigation. Bicycle racks are provided in front on the sidewalk and there are complimentary bicycles provided for the apartment resident’s use. In addition, a bocce ball court was built to give a usable space back to the community and to encourage social activity. Public transit is accessible nearby. The objective of the overall design is to help create a walkable community.

Project Address