You're viewing: AIA Nevada - State Organization

Visit a Local Chapter:

Palladio

Interior Architecture - Built

Honor

Building Sq. Ft.

20000

Date of Completion

01/11/2022

Firm Name

Daniel Joseph Chenin, Ltd

Project Narrative

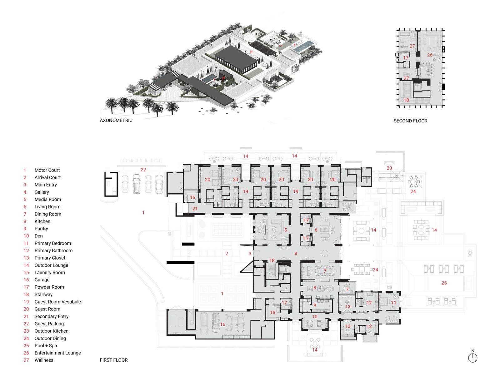
Designed from a cinematic approach, various themes unfold in the house, beginning with a concept borrowed from the owners’ collection of “Hudson River School” paintings. Drawing inspiration not only from the expansive landscape vistas the mid-19th-century American art movement was known for, but also from the gilded frames that anchor and define the artwork within; the primary design concept of “portals” that layer and frame rooms emerged. Thus, creating a curated experience that serves as a framed backdrop to life’s daily activities as they unfold. Guided by a secondary concept ‘discovery of the nuance, the design seeks to establish a distinctive sense of place that balances grandeur, whimsey, and modernity, while promoting individual discovery and joy. Provocative in its own way, classical and modern references are deconstructed, reinterpreted, and combined to a create a nuanced aesthetic vocabulary evocative of old Vegas glamour. Nestled into the hillside, the home is unassuming from the street, revealing itself slowly as one descends the winding drive to the motor court. Greeted by a pair of massive, ornamental brass doors framed by pillars of stone, the experience begins. Moving inward to the arrival courtyard a level of classical formality is juxtaposed by a starkly modern entry volume clad in steel. Through this first framed portal, the gallery, which serves as the central circulation spine, bone colored marble flooring with a dark border and onyx insets delineate the path of circulation, inviting guests to move through the series of spaces connected by frames. At each end of the corridor, cast concrete archways prominently frame connections to the exterior, visually terminating with the skyline beyond. The spatial organization of an H-shaped plan breaks down the scale of the home to create livable and discoverable environments. Branching off from the central gallery, a cluster of gathering spaces at the center of the home includes a media room, a formal living room, a dining room with kitchen beyond, and a grand stairwell leading to the upper-level entertainment lounge. A perpendicular corridor located at the very center of the interior presents a crossroads connecting the opposing private and guest wings. Unifying the architecture and the interiors under a singular vision facilitated the dissection of program and the introduction of various landscaped gardens that act as exterior rooms - wrapping the architecture and exterior environment around the interiors to create a variety of functional, livable environments at a human scale.

Sustainable Design & Material Choices

While not a client priority, it is incumbent upon us, as architects, to minimize the environmental impact of our designs to the greatest extent possible. Our sustainable approach included: Zoned Efficiency: The residence is designed with separate public and private zones, conditioned independently, to reduce energy consumption when entertaining and guest accommodations are unused. A rooftop solar array and a VAV system with thermostats, smart controls, and lighting sensors in every room further reduce energy usage. Materiality and Longevity: Steel frame, pre-cut off-site to minimize waste, quality construction, and use of highly durable materials make this a 100-year building. FSC Certified wood, zero VOC materials and coatings, and recycled/recyclable content in carpets and porcelain tile, and sourcing of vintage lighting and furniture reduce raw material consumption. Occupant Wellbeing: Each room has physical and visual access to the outdoors through operable fenestrations providing natural light, ventilation, and views. Individual temperature controls, layered lighting and daylight sensors, no/low VOC materials, and MERV 13 air filters incorporated throughout. Additional considerations include low flow plumbing fixtures, light colored pervious hardscapes, and an emphasis on drought tolerant plantings inside and out.

Project Address