Project Narrative
“Because of the daylight and views, we never turn the lights on…and if we do the students tell us to turn them off.”
– English teacher at Global Community High School
“Thank you for the windows!” – Global Community High School student
“All of my colleagues around the district are jealous, they wish they were here.” – Math teacher at Global Community High School
“The openness, the flowers in bloom, the architecture design all brings a sense of peace in a very stressful setting called ‘school’.” .”
– teacher at Global Community High School
“I love the windows! It creates an open space, that brings in natural light and makes learning more enjoyable.”
– teacher at Global Community High School
“The natural feel of the campus. It does not feel as institutional as any other school I have been a part of in my 21 years as a teacher and 15 as a CCSD student. It reduces anxiety for both my students and for me.” – teacher at Global Community High School
“It’s a gorgeous campus, and I feel honored to be able to teach here!” – teacher at Global Community High School
“Before coming to this school I shadowed at several other CCSD schools and the classrooms all felt like closets. When I first came to this school I was shocked that this was where I ended up being placed and it almost felt surreal.” – teacher at Global Community High School
“I teach special education and the large windows and views have helped reduce the anxiety my students felt in a classroom. We often look out on nature to help calm their fears. I never know how important a window in a classroom was, all my other classrooms at CCSD have been windowless.” – teacher at Global Community High School
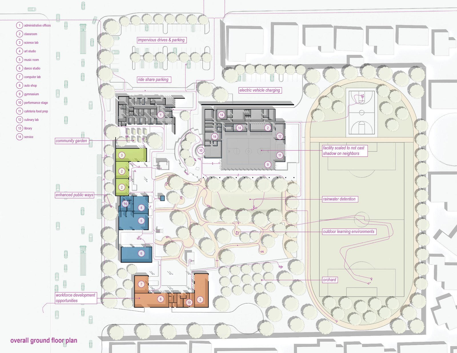
The design team found inspiration from Taliesin West experiencing life in a campus that embeds education within the landscape, where nature and man come together in fellowship, each playing an equal and essential part. This retreat inspired the desire to merge the campus and the education, to create a landscape that is both native desert and orchards of grapefruits, and where fellowship is built among the staff, students, fellows, and guests over meals.
Sited along a heavy commercial street, the site forms a barrier to protect an established residential neighborhood to the east of the site. The design began in landscape, creating an enhanced public realm along the roadways while reestablishing ecological foundations. Formal (structures) and informal classrooms are scattered among a landscape which serves to return to the idea of Las Vegas as a meadow, while also providing fruit and vegetables to support the culinary lab and food limitations of the students.
“It is the metal constructions—and the angled supports that make them possible—that are the campus’s most expressive parts. They are also where the students gather and the real learning takes place. It also points the way toward how Las Vegas might free itself…Breaking down volumes, working with the simplest materials, and figuring out how to use them in expressive ways in community spaces that are sheltered and shaded, but also open and shared to serve and help shape a diverse community. This recognition will be the key to a future Las Vegas architecture.”
- an excerpt from Aaron Betsky from his article "Making Good Las Vegas Architecture" on Architect Magazine
Sustainable Design & Material Choices
Through the design, the project’s larger purpose is to create a sense of change…a place that provides a feeling of community for not just the current students and their families but also for those to come. The school was seen not just as a resource but as an extension of community, a place where the individuals could come together as community. Where the needs of the community…education, food, happiness, security, social interaction, and discovery could be meet in the long term. A place to foster and encourage change for a stronger sense of well-being. The material selection was not limited to those that provide the sense of security through enclosure but to those that reinforce a visual connection and physical engagement with nature. The landscape was seen as just as important as any singular material used in construction. Architecture and Landscape were seen as equal, and school was to become a good neighbor again.
The design sought to create a sense of change through its form, scale, and materials to how the student’s felt towards governmental institutions. Breaking barriers to learning achieved through a lessening of anxiety.
Our primary materials were…daylight and landscape.